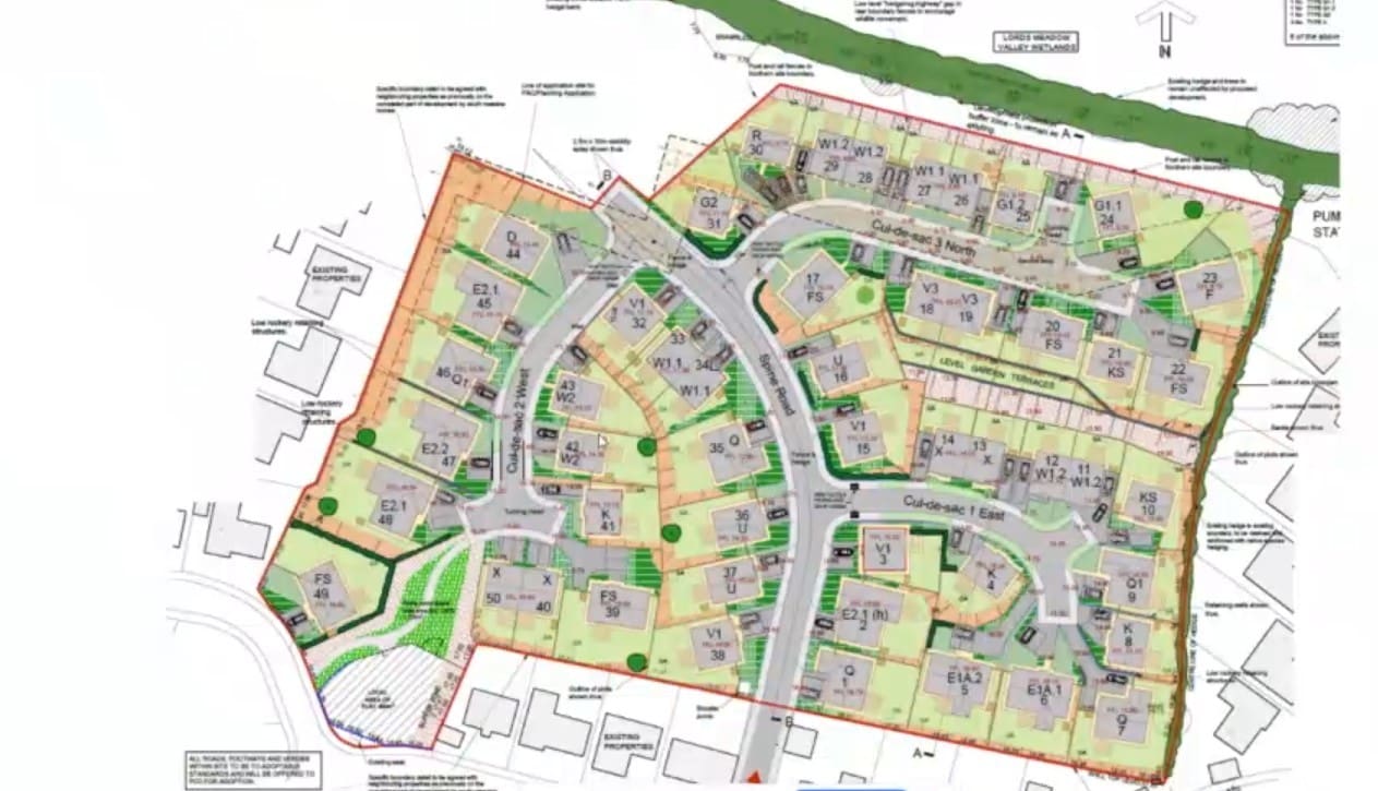
In an application recommended for refusal at the October, and now November, meetings of Pembrokeshire County Council’s planning committee, South Meadow Homes Ltd sought permission for a development of 50 homes, including a 10 per cent affordable housing contribution, on land north of Gibbas Way, on the outskirts of Pembroke.
A report for members said that further financial obligations for the scheme, other than affordable housing units, were sought, comprising of financial obligations to address the shortfall in planned capacity at Henry Tudor School (£41,321.74) and ‘active travel’ improvements (£25,000) respectively.
The financial obligations sought total £66,321.74.
It said that, other than the provision of the affordable housing units, “the applicant has challenged the obligations sought, suggesting that they are not justified and inferring that the development will be unviable if they are to be secured”.
It was recommended for refusal on the grounds of the absence of that obligation and for the need for a full Screening and Appropriate Assessment (AA) in compliance with the Habitats Regulations (2017) in consultation with Natural Resources Wales.
It said, in the absence of this, to grant planning permission would be “unlawful”.
Pembrokeshire County Council recently backed sending a letter to the First Minister, conveying the authority’s “great concern over Natural Resources Wales’ recent river nitrates guidance,” which has “essentially placed a moratorium on certain types of development in Pembrokeshire”.
It says the area which development is required to demonstrate nitrogen neutrality is approximately 75 per cent of the county, including Haverfordwest, Narberth, Pembroke and Pembroke Dock, and amounts to approximately 35 per cent of the council’s future housing land supply.
At the October meeting, members heard the applicants were investigating ways of mitigating the NRW concerns, and “at no time” had they refused the other obligations sought, awaiting an independent valuation of the viability with those conditions.
Members backed the scheme being “paused” while those issues could be addressed, the application returning to the November meeting.
At the November meeting, agent Guy Thomas reiterated there was no refusal to pay a contribution; members hearing the nitrates issue was ongoing.
“All we’re asking is for the opportunity to develop this application on a paused basis,” he said.
He said the cost for providing the affordable units amounted to some £0.75m, adding: “Our grievance is on top of that a late bid has been put in by education and highways, despite assurances it was no longer incumbent.”
He asked: “Why of all the nitrates paused applications have we been singled out for refusal?” he asked, adding: “Work with us to create these 50 new homes; we need you to allow the application to remain paused.”
Moving the recommendation of refusal, Cllr Simon Hancock said the scheme in its current form could not be approved.
Members voted in favour of the recommendation of refusal by 11 votes to one, with one abstention.
Discover more from Carmarthenshire News Online
Subscribe to get the latest posts sent to your email.


